Bespoke closet cabinetry by Lefèvre Interiors

 

As summer holidays are finished and everything is going back to normal, the employees in our workshop are busy preparing and finishing clients’ projects.

I would love to share with you today one of our latest projects we are working on : a bespoke wardrobe closet created from highly durable french oak.

After having discussed the design with our clients, I tried to collect some images for my inspiration (I am sorry to not know the source of them), before starting the design plans of the cabinetry.

 

Image 4Love the way the cabinet doors and drawers are divided.

 

Dressing 64 (Andrew Skurman) - kopieSimple but beautiful drawer unit.

 

Image 2Love the shoeracks here.

 

Image 5Clarifying!

 

Image 1 (2) Glass fronted drawers. Gorgeous!

 

Image 7Hanging rails compartment.

 

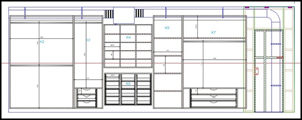
Design plan of the cabinetry

PlanExterior

 

View 4Inside

 

2012-08-31_144316 At the left side of the cabinetry wall we installed a paneled mirror.

2012-08-31_144248At the right side of the cabinetry wall our client loved to see a built in bookcase.

 

Here below I posted 2 pictures of the progress in our workshop.

Picture 1Workshop Lefèvre Interiors  Photo by me

Notice the glass fronted drawers.

Neither cabinet doors nor hanging rails are assembled yet.

Picture 2Workshop Lefèvre Interiors Photo by me

 

Some more Lefèvre Interiors wardrobe cabinetry.

Lefèvre Interiors picture 1Lefèvre Interiors  Photo credit Jo Pauwels

 

Lefèvre Interiors picture 2Lefèvre Interiors  Photo by me

 

Lefèvre Interiors picture 3Lefèvre Interiors  Photo credit Jo Pauwels

 

Lefèvre Interiors picture 4Lefèvre Interiors  Photo credit Montse Garriga

 

Happy weekend  to you all !

xx

Greet

If you would like us to help designing your closet or dressing room, feel free to contact us at info@lefevre.be

For more Lefèvre Interiors realizations visit our website at www.lefevre.be

0 Response to "Bespoke closet cabinetry by Lefèvre Interiors"

Post a Comment